
Tổng quan phân khu Thịnh Vượng
Diện tích phân khu: Đang cập nhật
Mô hình phát triển: Phân khu mở
Quy mô phát triển: 847 căn nhà ở thấp tầng
- Biệt thự đơn lập: 4 căn
- Biệt thự song lập: 22 căn
- Liền kề: 821 căn
Thời gian bàn giao: Năm 2025
Hình thức sở hữu: Sổ đỏ lâu dài
Phân khu Thịnh Vượng toạ lạc ngay mặt đường Trường Sa, được thiết kế với mật độ xây dựng thấp, thừa hưởng hệ thống công viên và kênh đào nội khu rộng lớn tạo nên một không gian sống riêng tư, yên tĩnh, giao hoà với thiên nhiên. Với những dịch vụ và tiện ích đặc quyền, phân khu Thịnh Vượng sẽ là lựa chọn của những người thành đạt, có lối sống hiện đại, tạo nên một cộng đồng cư dân tinh hoa.
Với kiến trúc tân cổ điển độc đáo, kết hợp hài hòa giữa nét đẹp cổ điển và sự tiện nghi hiện đại, sẽ mang đến cho cư dân và du khách những trải nghiệm sống đẳng cấp và độc đáo.

Vị trí phân khu Thịnh Vượng - Vinhomes Global Gate
Tọa lạc tại góc phía Bắc khu đô thị Vinhomes Global Gate, phân khu Thịnh Vượng sở hữu vị trí chiến lược:
Tiếp giáp 2 trục giao thông chính: Đường Trường Sa (Quốc lộ 5A) rộng 72m và đường TP5, kết nối thuận tiện nội – ngoại khu.
Gần hồ Thiên Nga 32ha – “kỳ quan” đẳng cấp của khu đô thị, mang đến không gian sống xanh mát.
Liền kề hệ thống tiện ích như cao ốc văn phòng, trường học Vinstar.
Dù diện tích tiếp giáp hồ Thiên Nga chỉ bằng 1/3 so với phân khu Tinh Hoa, cư dân vẫn tận hưởng trọn vẹn bầu không khí trong lành và tiện ích giải trí đẳng cấp.

Mặt bằng phân khu Tinh Hoa
Vinhomes Global Gate – Phân Khu Thịnh Vượng: Nét Kiến Trúc Châu Âu Cổ Điển Giữa Lòng Đô Thị
Phân khu Thịnh Vượng tuy có quy mô nhỏ nhất trong 3 phân khu thấp tầng của Vinhomes Global Gate, nhưng lại nổi bật với kiến trúc độc đáo nhất. Điểm nhấn chính là kiến trúc Châu Âu cổ điển – phong cách đã tạo nên thành công vang dội cho dự án biệt thự đầu tiên của tập đoàn tại Vinhomes Riverside Long Biên.
Đặc trưng kiến trúc độc đáo
Các biệt thự liền kề tại phân khu Thịnh Vượng mang tông màu trắng sáng lịch lãm, kết hợp hài hòa giữa:
- Cửa sổ vòm và cửa vuông rộng đan xen
- Thiết kế cách tân với mái bằng thay thế mái vát truyền thống
- Phong cách gợi nhớ đến những dãy nhà phố cổ điển đặc trưng tại các quốc gia Châu Âu thế kỷ 17-19
Không gian sống nghỉ dưỡng xanh mát
Sức hút của phân khu Thịnh Vượng còn đến từ không gian cảnh quan nghỉ dưỡng với:
- 4 công viên cây xanh rộng lớn trải dọc theo đường Trường Sa (mặt ngoài phân khu)
- 3 công viên nội khu chủ đề: Boutique Park, Royal Park và Rainbow Park
- Cư dân dễ dàng tiếp cận các tiện ích chỉ với vài bước chân: bể bơi ngoài trời, sân thể thao, sân chơi trẻ em, đường dạo bộ…


Bên cạnh kiến trúc cổ điển nghệ thuật, sức hút của phân khu Thịnh Vượng còn đến từ không gian cảnh quan mang đậm phong cách nghỉ dưỡng, đến từ 4 công viên cây xanh rộng lớn nằm trải dọc theo đường Trường Sa (Mặt ngoài phân khu) và 3 công viên nội khu chủ đề Boutique Park, Royal Park, Rainbow Park



Đặc biệt, phân khu Thịnh Vượng có vị trí đắc địa khi tiếp giáp với một phần hồ Thiên Nga rộng 32 ha, mang đến cuộc sống hiện đại nhưng vẫn tràn ngập không gian xanh, đáp ứng nhu cầu sống chất lượng cao của cư dân.
Loại hình phát triển

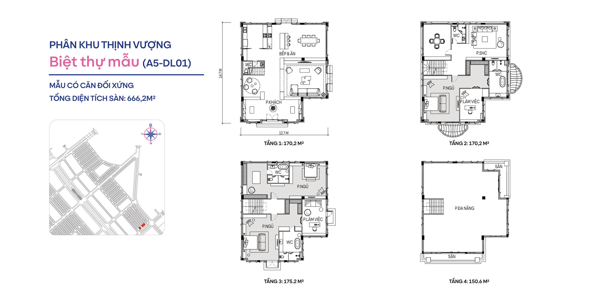
Biệt thự đơn lập
Biệt thự đơn lập Thịnh Vượng tại Vinhomes Global Gate gồm 4 căn độc bản với diện tích đất 344.5-380.5m², thiết kế 4 tầng sang trọng và mật độ xây dựng khoảng 50%.
Đây là 4 lô biệt thự lớn nhất dự án, nằm dọc công viên trung tâm 32ha, được ví như “4 viên kim cương” dành cho chủ nhân giàu có bậc nhất. Mỗi căn tọa lạc tại vị trí siêu đắc địa, mang đến tầm nhìn và không gian sống đẳng cấp.
Với tính độc bản, hầu hết đã được bán qua hình thức ngoại giao. Hiện tại, giá của những bất động sản siêu sang này khoảng hơn 200 tỷ đồng, khẳng định vị thế hàng đầu trong phân khúc bất động sản hạng sang.

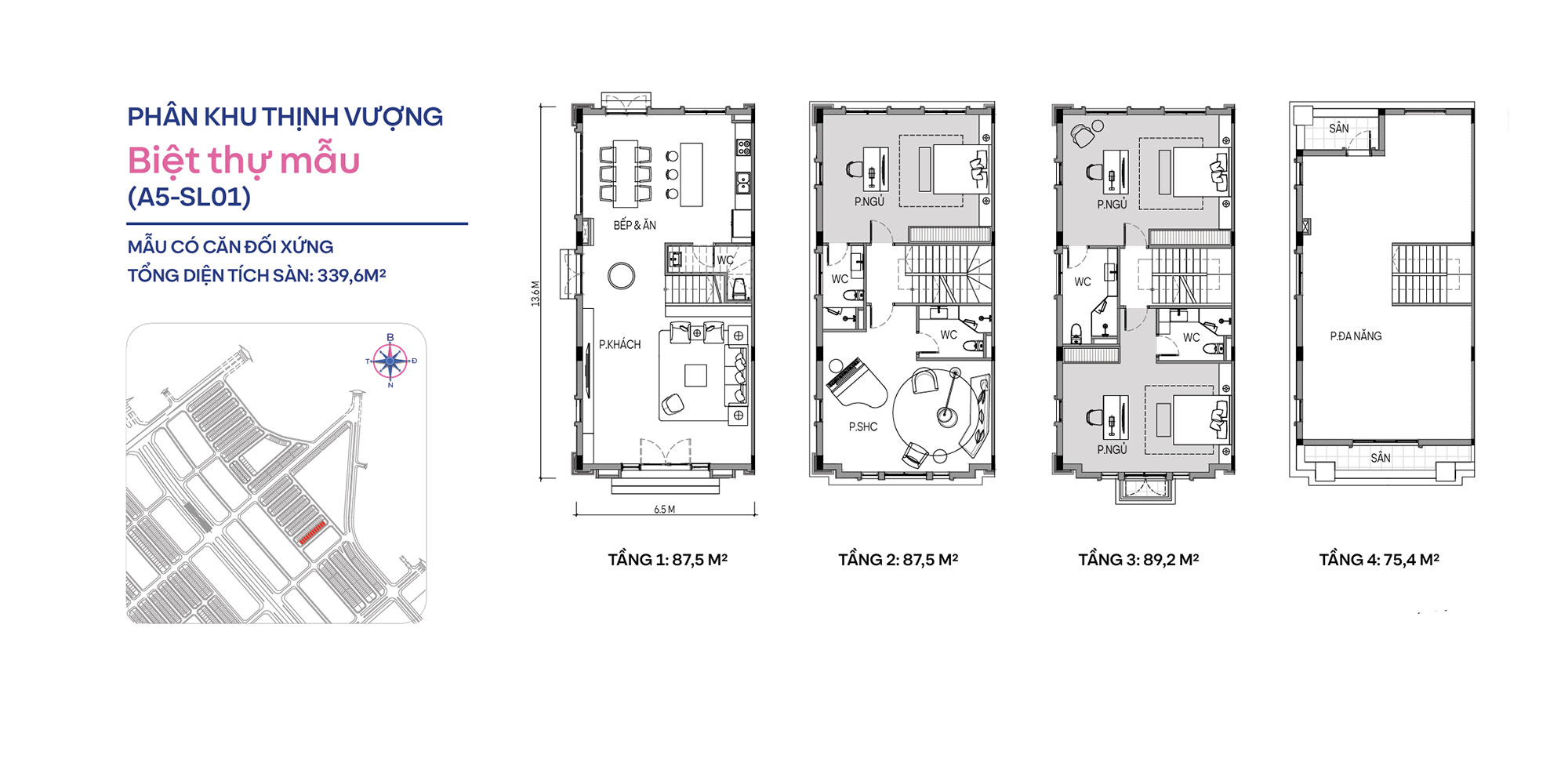
Biệt thự song lập
Biệt thự song lập Thịnh Vượng tại Vinhomes Global Gate gồm 22 căn với diện tích đất từ 127.5-153m², mật độ xây dựng 55-58%, thiết kế 4 tầng sang trọng. Các căn nằm ôm trọn 2 công viên Boutique Park và Royal Park.
Đây là dòng sản phẩm VIP với chất sống “resort” đẳng cấp có một không hai, song mức giá hợp lý hơn so với biệt thự đơn lập. Đặc biệt, với số lượng 22 căn, những khách hàng ưu tú vẫn có nhiều cơ hội sở hữu.
Hiện tại, giá bán của biệt thự song lập Thịnh Vượng nằm trong khoảng từ 50-62 tỷ đồng, là lựa chọn lý tưởng cho những ai tìm kiếm không gian sống cao cấp với vị thế đắc địa tại khu vực.

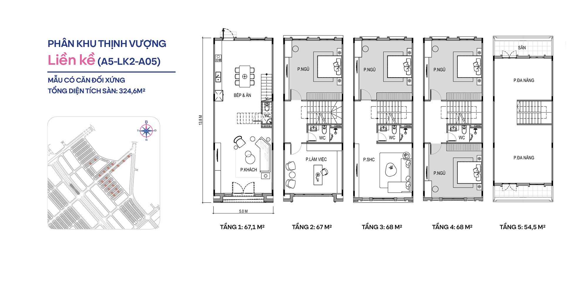
Liền kề
Liền kề (Nhà phố) Thịnh Vượng tại Vinhomes Global Gate gồm 821 căn, với diện tích đất chủ yếu từ 62.5-100m² (lô góc 82.8-290m²), mật độ xây dựng trung bình 84%, thiết kế 5 tầng hiện đại. Các căn nằm tại hầu hết các trục đường nội bộ Thịnh Vượng.
Đây là dòng sản phẩm chính, chiếm 97% tổng nhà ở của phân khu Thịnh Vượng, với giá thành vừa phải, rất lý tưởng để mua để ở/kinh doanh hoặc đầu tư/đầu cơ/tích lũy tài sản.
Hiện tại, giá bán liền kề (nhà phố) Thịnh Vượng nằm trong khoảng từ 17-36 tỷ đồng, mang đến cơ hội sở hữu bất động sản giá trị trong khu đô thị đẳng cấp cho nhiều đối tượng khách hàng.






